Küche Mit Speisekammer Grundriss

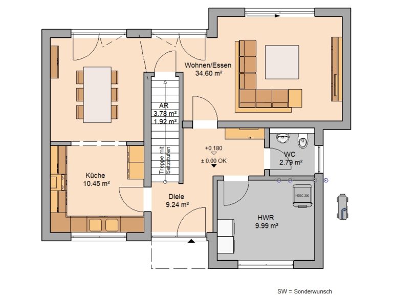
Küche Mit Speisekammer Grundriss. Küche Mit Speisekammer Grundriss Braunpulsonicquickly Ein Ehepaar entschied sich für einen offenen, lichtdurchfluteten Raum, in dem Küche und Essbereich ebenso Platz finden sollten wie eine zusätzliche Abgrenzung zur Speisekammer. Liegt der Vorratsraum direkt neben der Küche, sparen Sie sich beim Kochen den Weg nach unten

Küche Mit Speisekammer Grundriss Braunpulsonicquickly
Küche Mit Speisekammer Grundriss Braunpulsonicquickly from braunpulsonicquickly.blogspot.com

Sie bietet eine schlichte, moderne Ästhetik und alles, was Sie brauchen Das Forum ist richtig klasse und ich hab schon einige gute Tipps lesen können.

Küche Mit Speisekammer Grundriss Braunpulsonicquickly

Ein Ehepaar entschied sich für einen offenen, lichtdurchfluteten Raum, in dem Küche und Essbereich ebenso Platz finden sollten wie eine zusätzliche Abgrenzung zur Speisekammer. In manchen Häusern dient die Speisekammer auch als Verbindung zwischen Küche und Hauswirtschaftsraum Bei einer offenen Küche mit Kochinsel sollte der Grundriss dementsprechend großzügiger gestaltet werden

Küche Mit Speisekammer Grundriss á … Der Weg Zum Perfekten Grundriss Erfahrungen Von Bauherren. Ein Ehepaar entschied sich für einen offenen, lichtdurchfluteten Raum, in dem Küche und Essbereich ebenso Platz finden sollten wie eine zusätzliche Abgrenzung zur Speisekammer. Speisekammer oder Lagerschränke in der Küche? Hallo, es würde mich richtig freuen, wenn ihr hier im Forum vorab schon ein paar Ratschläge zur Küchenplanung bekommen könnte, bevor ich dann Schritt für Schritt in die Details gehen kann

Küche in einem Einfamilienhaus Innenarchitekt in München Andreas Ptatscheck Bayern. Speisekammer als Raum im Raum, ohne die offene Struktur zu stören? Mit einer derartigen Herausforderung sah sich das Wohn- und Einrichtungshaus Grill & Ronacher aus dem österreichischen Bad Aussee konfrontiert Stauraum - Speisekammer oder Vorratsschränke in der Küche